Walter Ramirez

 

Walter Ramirez

 

Walter Ramirez

 

Walter Ramirez

 

Walter Ramirez

 

Walter Ramirez

Renders in Lumion

Walter Ramirez

 

  • MINERVA HOUSING

    DESIGN CONSULTING AND RENDERING SERVICES

     

    Year: 2022
    Location: Huehuetenango, Guatemala
    Client: Lotificacion El Diamante SA
    Scope:
    * Master Plan consulting
    * House Design Consulting
    * 3D rendering
    * Video Rendering

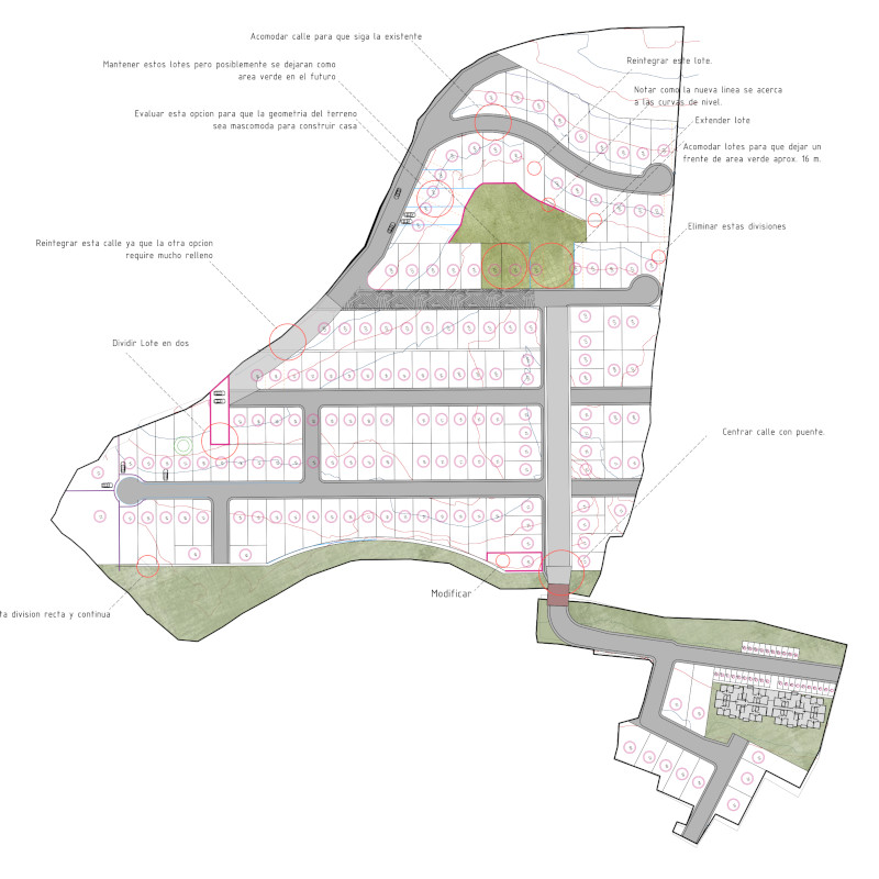
    Design consulting was provided throughout the different phases of development, from Master Plan to house design. Two separate properties were joined and connected through a barrel arch bridge. The slopped and irregular terrain was a particular challenge to design the layout due to the budget restrictions. Additional assistance was provided for marketing material, including exterior 3D rendering, rendered floor plans and walkthrough video.

    Walter Ramirez

     

    document sample shows communication between me and Master Planning Architect

    Walter Ramirez

    Study section based on Aerial Drone Mapping

     

    Walter Ramirez

    Steel and concrete barrel vault bridge

     

    Walter Ramirez

     

    Development as 06/07/24

    Walter Ramirez